
Модули собираются у нас на производстве. В назначенную дату привозим и монтируем у Вас на участке. Минимум грязи на участке, но есть ограничение по планировке из - за инженерных особенностей стыковки модулей.
Дом собирается полностью у Вас на участке. Возможны любые варианты планировок. Можно сделать более покатую кровлю, второй свет или полноценный второй этаж.
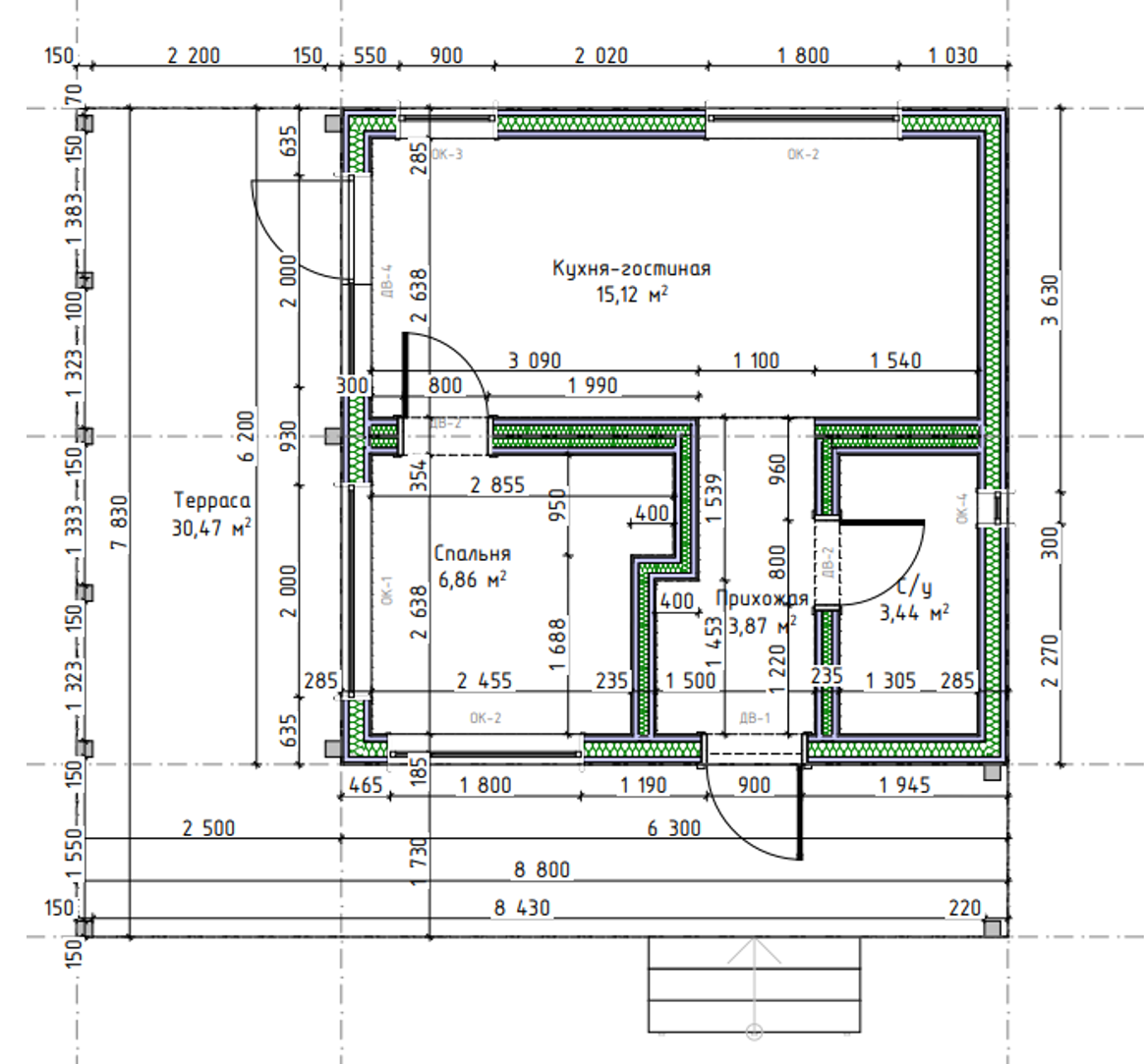
Уют 6х4.8 вариант 1
Современный одноэтажный дом в стиле минимализм — идеальное решение для комфортного проживания одного человека, пары или инвестиционного проекта. Проект сочетает компактные размеры, функциональность и выразительную архитектуру.
Фасад выполнен в сочетании тёплого дерева и контрастных тёмных элементов, что создаёт стильный и современный внешний вид. Панорамное остекление наполняет пространство естественным светом и визуально расширяет интерьер, делая его более открытым и уютным.
Крытая входная зона и небольшая терраса формируют комфортное пространство для отдыха на свежем воздухе.
Рациональная и удобная планировка:
Этот дом — отличный выбор для тех, кто ищет компактное, стильное и функциональное пространство. Он прекрасно подойдёт как для постоянного проживания, так и для дачи или инвестиционного проекта с высокой доходностью.
Комплектация "Теплый контур"
1.295.000 рублей
Комплектация "Стандарт"
1.850.000 рублей
Проект может быть адаптирован под индивидуальные требования заказчика: изменены планировка, размеры помещений, внешний вид фасада и варианты отделки с учётом ваших пожеланий и особенностей участка.
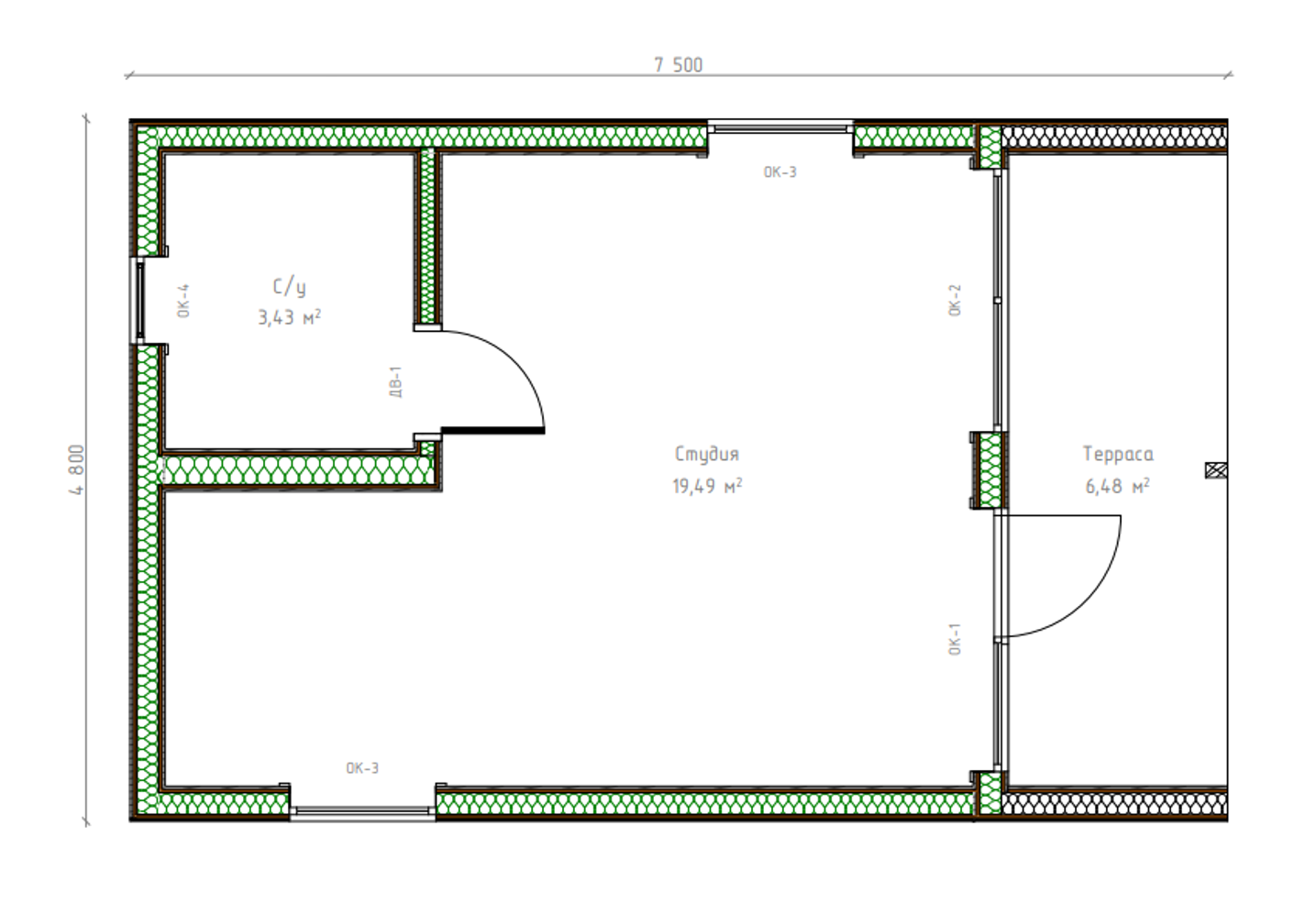
Уют 6х4.8 вариант 2
Стильный и компактный одноэтажный дом в современном скандинавском стиле — идеальное решение для комфортного отдыха, дачи или инвестиционного проекта. Лаконичная архитектура, натуральные материалы и продуманная планировка создают уютное и функциональное пространство.
Фасад выполнен в светлой древесной гамме с контрастными тёмными элементами и просторной крытой террасой. Панорамное остекление по фасаду наполняет дом естественным светом и визуально объединяет интерьер с окружающей природой.
Терраса на свайном основании становится полноценной зоной отдыха — здесь можно разместить обеденную группу, лаунж-пространство и зону барбекю. Дом отлично подходит для размещения на участках с перепадом высот.
Максимально рациональное использование пространства:
Этот дом — отличный вариант для тех, кто ищет компактное, стильное и функциональное жильё. Он идеально подойдёт для одного человека, пары или как готовый продукт для сдачи в аренду с высокой ликвидностью.
Комплектация "Теплый контур"
1.295.000 рублей
Комплектация "Стандарт"
1.850.000 рублей
Проект может быть адаптирован под индивидуальные требования заказчика: изменены планировка, размеры помещений, внешний вид фасада и варианты отделки с учётом ваших пожеланий и особенностей участка.
Уют 6х6 вариант 1
Современный одноэтажный дом в скандинавском стиле — идеальное решение для комфортного отдыха, дачи или инвестиционного проекта. Проект сочетает лаконичный дизайн, натуральные материалы и продуманную планировку, обеспечивая уют и функциональность в каждом метре.
Фасад выполнен в стильной серой гамме с вертикальной отделкой и контрастными тёмными элементами. Панорамное остекление в зоне гостиной делает пространство светлым и визуально расширяет интерьер, создавая гармоничную связь с природой.
Просторная терраса с перголой — ключевая зона отдыха, где можно разместить обеденную группу, лаунж-зону или организовать пространство для барбекю. Дом установлен на свайном фундаменте, что позволяет использовать его на участках с любым рельефом.
Рациональное решение для комфортной жизни:
Этот дом — идеальный баланс между стоимостью, комфортом и эстетикой. Он подойдёт для одного человека, пары или как готовый продукт для сдачи в аренду с высокой востребованностью.
Комплектация "Теплый контур"
1.850.000 рублей
Комплектация "Стандарт"
2.600.000 рублей
Проект может быть адаптирован под индивидуальные требования заказчика: изменены планировка, размеры помещений, внешний вид фасада и варианты отделки с учётом ваших пожеланий и особенностей участка.
Уют 6х6 вариант 2
Современный одноэтажный дом в скандинавском стиле — идеальное решение для комфортной жизни, отдыха или инвестиционного проекта. Лаконичная архитектура, натуральные материалы и продуманная планировка создают уютное и функциональное пространство.
Фасад выполнен из вертикальной деревянной отделки в тёплых оттенках, что придаёт дому стильный и премиальный внешний вид. Панорамное остекление в зоне гостиной наполняет интерьер естественным светом и создаёт ощущение открытого пространства.
Крытая терраса — важная часть дома, которая расширяет жилую площадь и становится идеальным местом для отдыха на свежем воздухе.
Дом спроектирован максимально рационально:
Этот дом — отличное решение для тех, кто ищет компактное, стильное и доступное жильё. Он идеально подойдёт для загородного отдыха, постоянного проживания или как инвестиция с высокой окупаемостью.
Комплектация "Теплый контур"
1.850.000 рублей
Комплектация "Стандарт"
2.600.000 рублей
Проект может быть адаптирован под индивидуальные требования заказчика: изменены планировка, размеры помещений, внешний вид фасада и варианты отделки с учётом ваших пожеланий и особенностей участка.
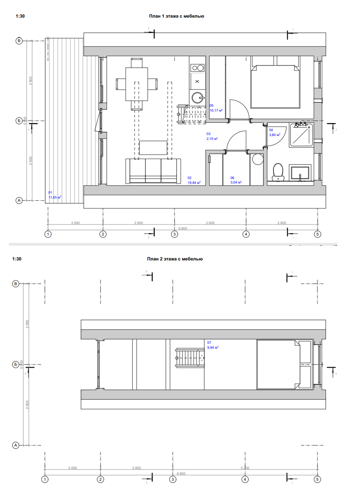
Уют 6х8 А-фрейм
Современный дом формата A-frame — это идеальное сочетание архитектурной выразительности, уюта и функциональности. Лаконичная треугольная форма делает проект не только стильным, но и максимально эффективным с точки зрения пространства и энергоэффективности.
Фасад выполнен в сочетании натурального дерева и светлой кровли, а панорамное остекление по фронтальной части наполняет дом светом и открывает живописный вид на участок. Такой дом органично вписывается в природное окружение и создаёт атмосферу уединения и отдыха.
Небольшая терраса у входа становится уютным пространством для утреннего кофе или вечернего отдыха.
Дом имеет два уровня, что позволяет эффективно использовать площадь:
Этот дом — идеальный вариант для загородного отдыха, дачи или инвестиционного проекта под аренду. Благодаря необычной архитектуре он выделяется на рынке и привлекает внимание, а уютная атмосфера делает его особенно востребованным.
Комплектация "Теплый контур"
2.850.000 рублей
Комплектация "Стандарт"
3.800.000 рублей
Проект может быть адаптирован под индивидуальные требования заказчика: изменены планировка, размеры помещений, внешний вид фасада и варианты отделки с учётом ваших пожеланий и особенностей участка.
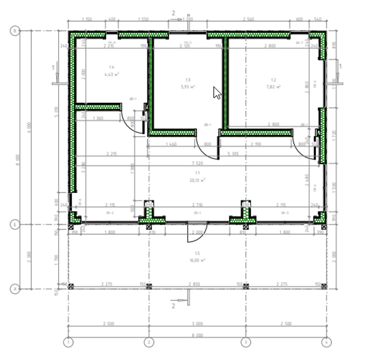
Уют 6х8 Вариант 1
Стильный и функциональный дом для комфортной жизни за городом. Архитектура сочетает выразительный современный дизайн с практичностью: контрастные фасады, большие окна и уютная крытая терраса создают идеальное пространство для отдыха в любое время года.
Дом отлично подойдёт как для постоянного проживания, так и для загородного отдыха.
Пространство дома грамотно разделено на общую и приватную зоны:
Этот дом — идеальное решение для тех, кто ищет компактное, но продуманное жильё с современным внешним видом и комфортной внутренней организацией пространства.
Комплектация "Теплый контур"
2.600.000 рублей
Комплектация "Стандарт"
3.600.000 рублей
Проект может быть адаптирован под индивидуальные требования заказчика: изменены планировка, размеры помещений, внешний вид фасада и варианты отделки с учётом ваших пожеланий и особенностей участка.
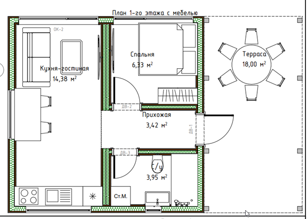
Уют 7х8 вариант 1
Современный одноэтажный дом в минималистичном стиле — идеальное решение для комфортной жизни за городом. Архитектура сочетает строгие линии, натуральные материалы и выразительные тёмные акценты, создавая стильный и актуальный внешний вид.
Главной особенностью проекта является светлая и просторная кухня-гостиная с панорамным остеклением и выходом на террасу. Благодаря большим окнам пространство наполняется естественным светом и открывает вид на природу, создавая ощущение единства с окружающей средой.
Крытая терраса у входа формирует уютную зону отдыха, защищённую от солнца и осадков — идеальное место для завтраков, встреч с друзьями или спокойного вечернего отдыха.
Дом спроектирован с акцентом на комфорт и функциональность:
Этот дом — универсальное решение для тех, кто ценит современную архитектуру, продуманную планировку и комфорт загородной жизни. Идеально подойдёт как для постоянного проживания, так и для использования в формате арендного бизнеса.
Комплектация "Теплый контур"
3.000.000 рублей
Комплектация "Стандарт"
4.200.000 рублей
Проект может быть адаптирован под индивидуальные требования заказчика: изменены планировка, размеры помещений, внешний вид фасада и варианты отделки с учётом ваших пожеланий и особенностей участка.
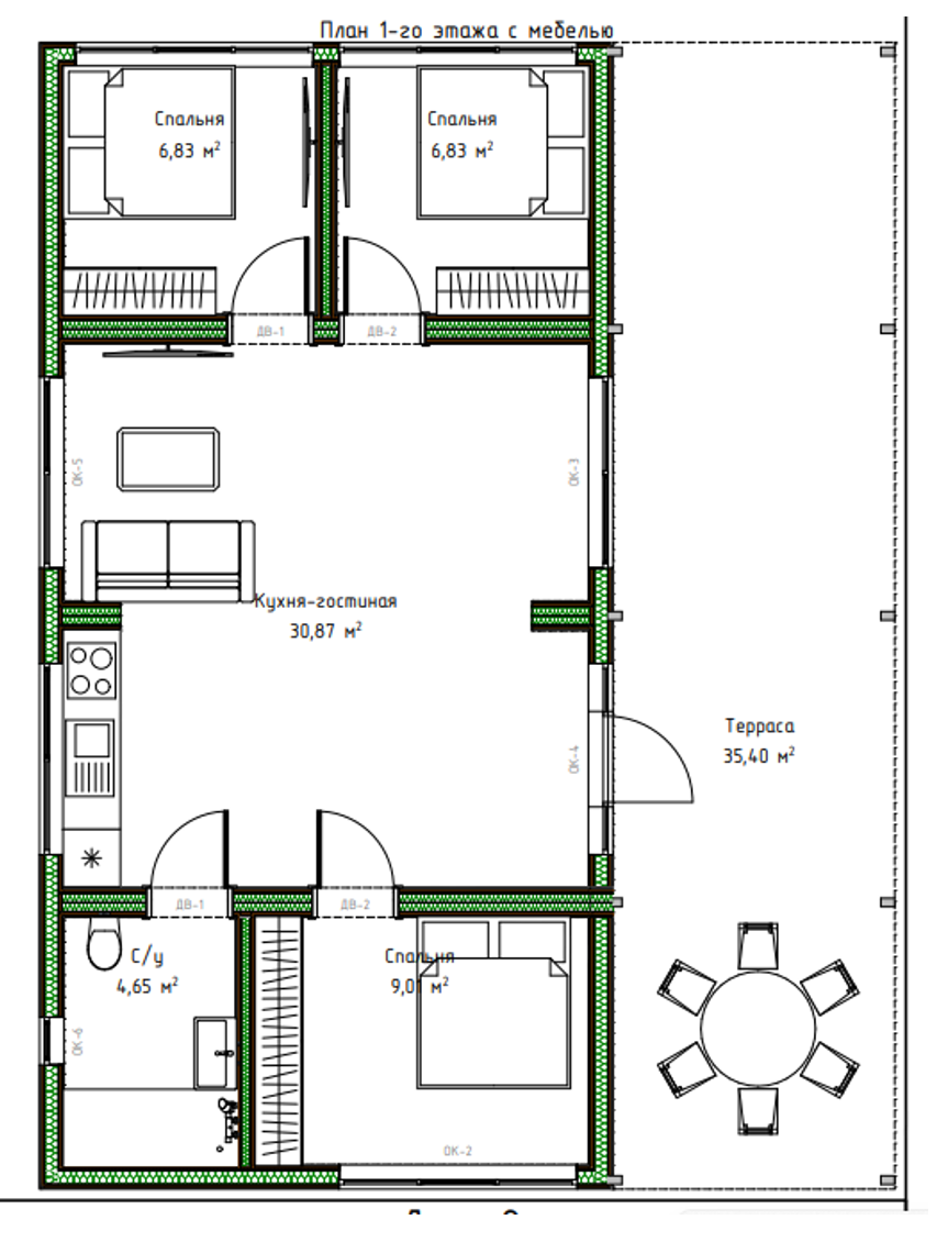
Уют 6х9 вариант 1
Стильный и функциональный одноэтажный дом в скандинавском стиле — идеальное решение для комфортной загородной жизни, отдыха или сдачи в аренду. Проект сочетает лаконичную архитектуру, натуральные материалы и продуманную планировку.
Фасад выполнен в сдержанной серой гамме с вертикальной отделкой, дополненной контрастными тёмными элементами и перголой над террасой. Панорамное остекление наполняет дом естественным светом и создаёт визуальную связь с окружающей природой.
Просторная терраса с навесом — ключевая зона отдыха, где можно организовать обеденное пространство, лаунж или зону барбекю. Дом установлен на свайном фундаменте, что обеспечивает надёжность и позволяет использовать его на участках с любым рельефом.
Дом спроектирован с акцентом на комфорт и функциональность:
Этот дом сочетает в себе практичность, современный внешний вид и уют загородной жизни. Отличный выбор как для собственного проживания, так и для инвестиционного проекта с высокой ликвидностью.
Комплектация "Теплый контур"
2.500.000 рублей
Комплектация "Стандарт"
3.600.000 рублей
Проект может быть адаптирован под индивидуальные требования заказчика: изменены планировка, размеры помещений, внешний вид фасада и варианты отделки с учётом ваших пожеланий и особенностей участка.
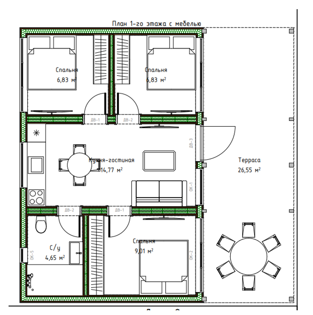
Уют 6х9 вариант 2
Элегантный одноэтажный дом в скандинавском стиле — идеальное решение для комфортной загородной жизни или отдыха. Проект сочетает в себе современную архитектуру, натуральные материалы и продуманную планировку.
Контрастный фасад из тёмного и светлого дерева придаёт дому стильный и премиальный внешний вид. Панорамное остекление в зоне гостиной наполняет пространство естественным светом и создаёт эффект единения с природой. Архитектурная подсветка добавляет уюта и делает дом особенно привлекательным в вечернее время.
Просторная крытая терраса — ключевой элемент проекта. Это полноценная зона отдыха, где можно разместить обеденную группу, лаунж-зону и зону барбекю.
Дом спроектирован с акцентом на комфорт и функциональность:
Этот дом идеально подойдёт для постоянного проживания, дачи или сдачи в аренду. Он сочетает в себе компактность, функциональность и стиль — всё, что нужно для комфортной загородной жизни.
Комплектация "Теплый контур"
2.700.000 рублей
Комплектация "Стандарт"
3.800.000 рублей
Проект может быть адаптирован под индивидуальные требования заказчика: изменены планировка, размеры помещений, внешний вид фасада и варианты отделки с учётом ваших пожеланий и особенностей участка.
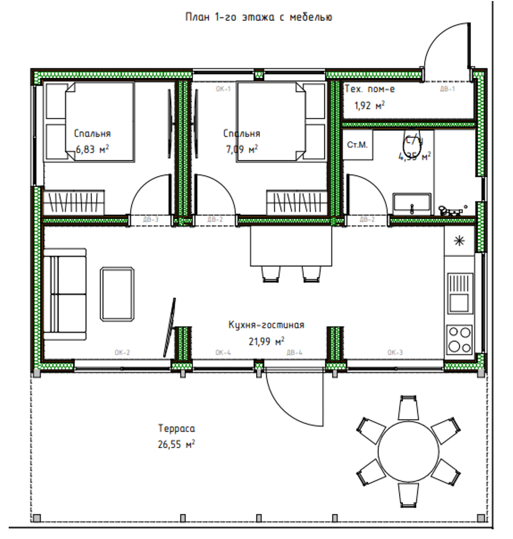
Уют 6х9 вариант 3
Современный одноэтажный дом в скандинавском стиле — идеальное решение для комфортной загородной жизни или отдыха. Проект сочетает компактные размеры, продуманную планировку и выразительную архитектуру с акцентом на натуральные материалы.
Фасад выполнен в светлой древесной гамме с контрастными тёмными элементами и лаконичными линиями. Панорамное остекление в зоне гостиной визуально расширяет пространство и наполняет дом естественным светом, создавая ощущение уюта и открытости.
Просторная крытая терраса становится ключевой зоной отдыха — здесь можно разместить обеденную группу, лаунж-зону или обустроить пространство для встреч с семьёй и друзьями. Дом органично вписывается в природное окружение и создаёт атмосферу уединения.
Рациональное использование каждого метра делает дом максимально удобным:
Этот дом — отличное сочетание доступности, функциональности и современного дизайна. Он подойдёт как для постоянного проживания небольшой семьи, так и для дачи или инвестиционного проекта под аренду.
Комплектация "Теплый контур"
2.500.000 рублей
Комплектация "Стандарт"
3.700.000 рублей
Проект может быть адаптирован под индивидуальные требования заказчика: изменены планировка, размеры помещений, внешний вид фасада и варианты отделки с учётом ваших пожеланий и особенностей участка.
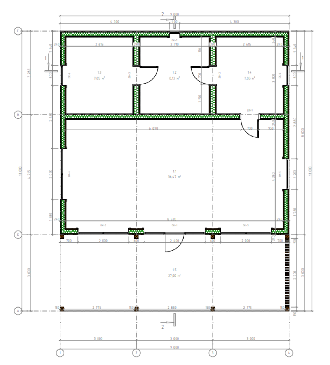
Уют 8х9 вариант 1
Эффектный одноэтажный дом в современном стиле с акцентом на пространство, свет и комфорт. Яркий фасад в сочетании с чёрными элементами и панорамным остеклением делает архитектуру выразительной и запоминающейся.
Главная особенность проекта — просторная кухня-гостиная с угловыми окнами в пол, которые создают максимальное ощущение открытого пространства и наполняют дом естественным светом.
Дом идеально подходит для семьи и продуман до мелочей:
Этот дом — отличный выбор для тех, кто хочет получить максимум пространства и света в современном формате. Подойдёт как для постоянного проживания, так и для загородного отдыха или аренды.
Комплектация "Теплый контур"
3.300.000 рублей
Комплектация "Стандарт"
4.550.000 рублей
Проект может быть адаптирован под индивидуальные требования заказчика: изменены планировка, размеры помещений, внешний вид фасада и варианты отделки с учётом ваших пожеланий и особенностей участка.
Уют 8х9 вариант 2
Современный одноэтажный дом с продуманной планировкой, идеально подходящий для комфортной жизни семьи. Архитектура сочетает лаконичные формы, контрастные фасады и большие окна, наполняющие дом светом и создающие ощущение простора.
Главный акцент проекта — просторная кухня-гостиная площадью более 36 м², которая становится центром жизни и объединяет всю семью.
Функциональное зонирование делает дом удобным для постоянного проживания:
Этот проект — идеальный баланс между компактностью и комфортом. Дом подойдёт для круглогодичного проживания, отдыха за городом или сдачи в аренду.
Комплектация "Теплый контур"
3.600.000 рублей
Комплектация "Стандарт"
4.850.000 рублей
Проект может быть адаптирован под индивидуальные требования заказчика: изменены планировка, размеры помещений, внешний вид фасада и варианты отделки с учётом ваших пожеланий и особенностей участка.
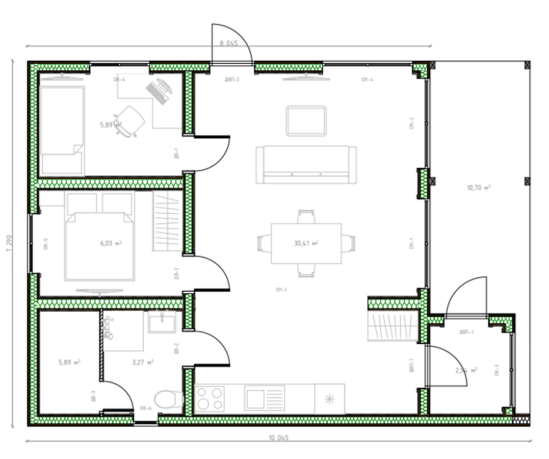
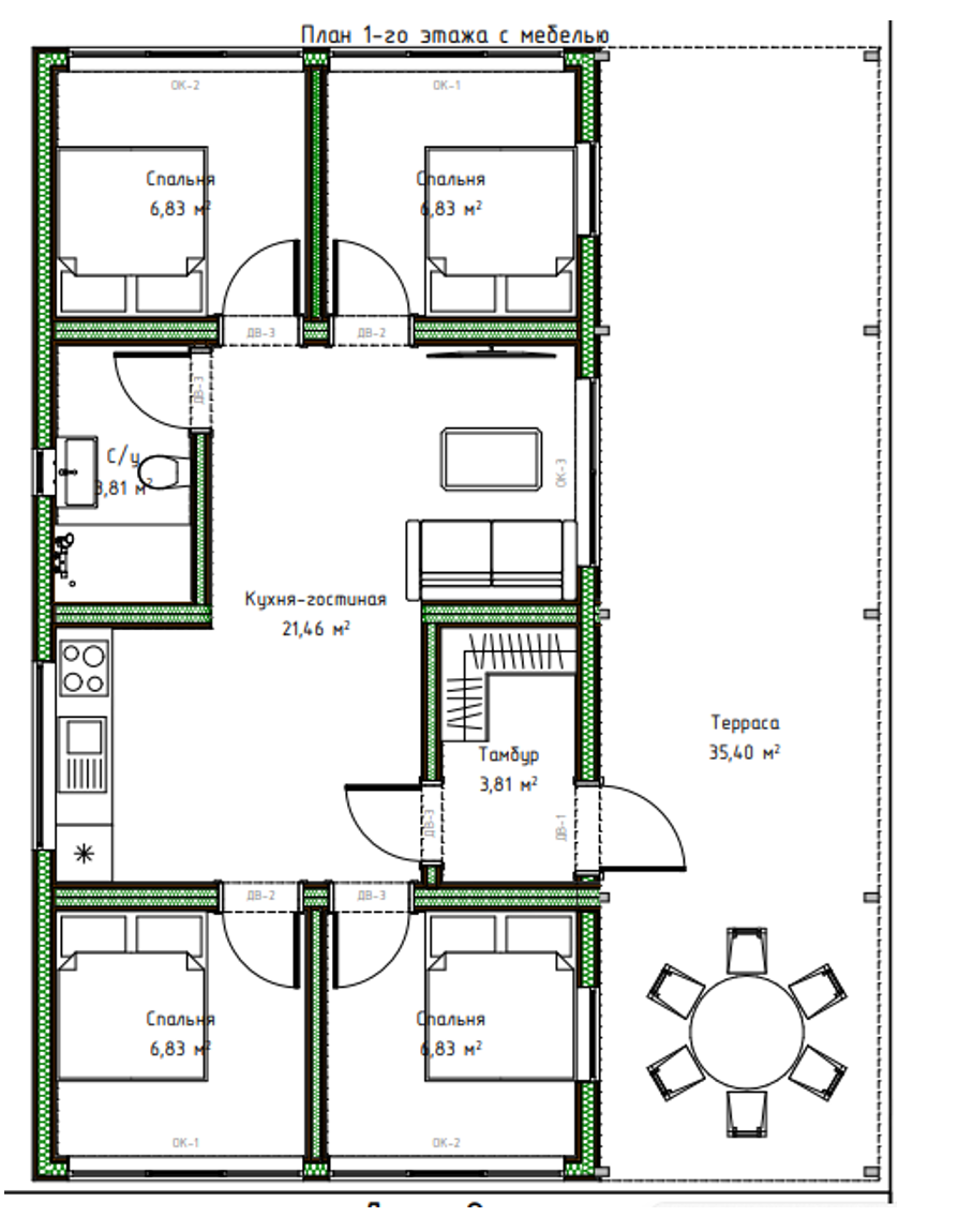
Уют 6х12 вариант 1
Функциональный и стильный одноэтажный дом в современном скандинавском стиле — идеальное решение для большой семьи или комфортного загородного отдыха. Архитектура проекта сочетает минимализм, натуральные материалы и продуманную планировку, обеспечивая максимальное удобство в повседневной жизни.
Фасад выполнен из натурального дерева в тёплой цветовой гамме с контрастными тёмными элементами и перголой по всей длине террасы. Панорамное остекление делает дом светлым и визуально расширяет пространство, создавая эффект единения с природой.
Большая терраса с подсветкой — ключевая зона отдыха. Здесь легко разместить обеденную группу, лаунж-пространство и зону барбекю. Это идеальное место для семейных вечеров и встреч с друзьями.
Дом спроектирован с акцентом на удобство и приватность:
Этот дом сочетает в себе продуманную планировку и современную архитектуру, создавая комфортное пространство для жизни, отдыха и общения. Отлично подойдёт как для постоянного проживания большой семьи, так и для инвестиционного проекта под аренду.
Комплектация "Теплый контур"
3.780.000 рублей
Комплектация "Стандарт"
5.400.000 рублей
Проект может быть адаптирован под индивидуальные требования заказчика: изменены планировка, размеры помещений, внешний вид фасада и варианты отделки с учётом ваших пожеланий и особенностей участка.
Уют 6х12 вариант 2
Функциональный одноэтажный дом в современном скандинавском стиле, идеально подходящий для комфортной загородной жизни всей семьи. Архитектура сочетает минимализм, натуральные материалы и продуманную эргономику пространства.
Фасад выполнен в светлой древесной отделке с контрастными тёмными элементами и декоративной перголой, создающей выразительный и современный облик. Панорамное остекление по фасаду наполняет дом естественным светом и визуально объединяет интерьер с окружающей природой.
Дом установлен на свайном фундаменте, что позволяет эффективно использовать его на участках с перепадами высот и обеспечивает долговечность конструкции.
В основе проекта — удобная и логичная планировка для семьи:
Этот дом сочетает в себе комфорт городской квартиры и свободу загородной жизни. Отлично подойдёт как для постоянного проживания, так и для инвестиционного проекта под аренду благодаря продуманной планировке и привлекательному внешнему виду.
Комплектация "Теплый контур"
3.700.000 рублей
Комплектация "Стандарт"
5.600.000 рублей
Проект может быть адаптирован под индивидуальные требования заказчика: изменены планировка, размеры помещений, внешний вид фасада и варианты отделки с учётом ваших пожеланий и особенностей участка.
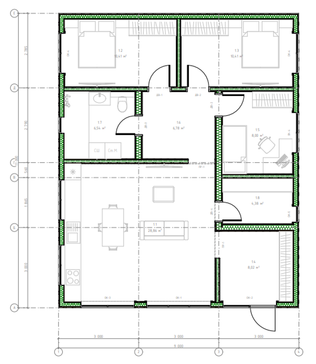
Уют 9х11 вариант 1
Стильный и практичный дом для комфортной жизни всей семьи. Архитектура выполнена в современном минималистичном стиле: строгие формы, выразительный фасад в ярком цвете и крупные окна, наполняющие дом светом.
Дом идеально подойдёт как для постоянного проживания, так и для загородного отдыха.
Продуманное зонирование обеспечивает удобство для каждого члена семьи:
Этот дом — идеальный баланс между компактностью и комфортом. Отличный вариант для семьи, которая хочет получить максимум пространства и удобства в современном формате загородного жилья.
Комплектация "Теплый контур"
4.760.000 рублей
Комплектация "Стандарт"
6.800.000 рублей
Проект может быть адаптирован под индивидуальные требования заказчика: изменены планировка, размеры помещений, внешний вид фасада и варианты отделки с учётом ваших пожеланий и особенностей участка.
Уют 9х11 вариант 2
Современный дом в ярком архитектурном исполнении — идеальный выбор для семьи, которая ценит комфорт, функциональность и стиль. Контрастный фасад с выразительными окнами придаёт дому индивидуальность, а продуманная планировка делает его максимально удобным для жизни.
Большие окна обеспечивают отличную инсоляцию и визуально расширяют пространство, создавая уютную атмосферу внутри.
Дом грамотно разделён на общественную и приватную зоны:
Этот дом — отличный вариант для семьи, которой важно сочетание простора, уюта и функциональности. Он легко адаптируется под разные сценарии жизни: от постоянного проживания до загородного отдыха или аренды.
Комплектация "Теплый контур"
4.550.000 рублей
Комплектация "Стандарт"
6.500.000 рублей
Проект может быть адаптирован под индивидуальные требования заказчика: изменены планировка, размеры помещений, внешний вид фасада и варианты отделки с учётом ваших пожеланий и особенностей участка.
Сделаем предложение, которое не оставит Вас равнодушным!
Калистратов Максим Анатольевич (ИНН: 594809277607, ОГРНИП: 325595800070939)